ÚLTIMAS NOVEDADES VOLVER

13-10-2020

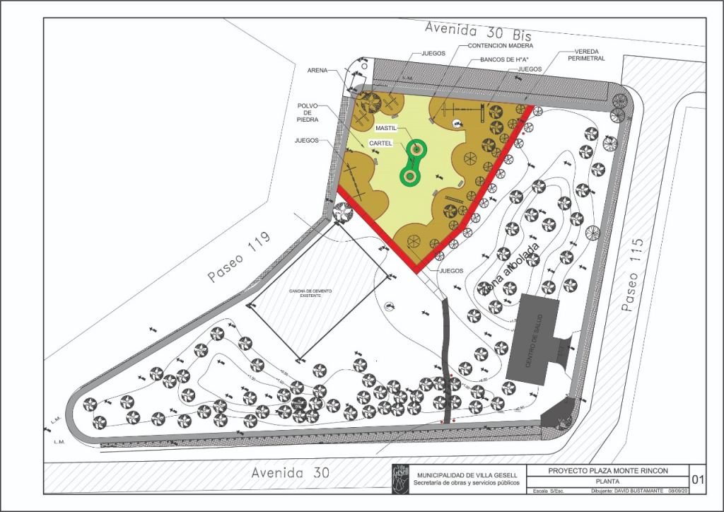
ESTA SEMANA EL MUNICIPIO INICIARÁ LAS OBRAS DE MEJORAS DE LA PLAZA DE MONTE RINCÓN

Las obras se desarrollarán frente a la escuela 4, en Avenida 30 bis entre Paseo 119 y Paseo 115. En el gráfico se puede ver el detalle del proyecto que incluye nuevos juegos, bancos y embellecimiento del espacio público con polvo de piedra y veredas.

Dicho trabajo se sumará a las que pronto se ejecutarán en el mismo barrio, como el Centro de Salud de Monte Rincón y el asfaltado del Paseo 119 entre Boulevard y la Escuela 4.